Продается дом, 97 кв.м., /1 эт
| Стоимость | 9 850 000 |
|---|---|
| Категория земли | ИЖС |
| Право собственности | Застройщик |
| Категория земли Avito | Индивидуальное жилищное строительство (ИЖС) |
| Тип строения | Дом |
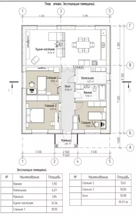
| Площадь, кв.м. | 97 |
| Этажность | 1 |
| Материал стен | Кирпич |
| Населенный пункт | деревня Байрак |
|---|---|
| Улица | улица Сергея Шашкина |
Компания АРТ Дома предлагает вам уютный комфортный и надежный дом из качественных материалов, с отделкой White box, расположенный в поселке Байрак по улице Сергея Шашкина. Фундамент: монолитный ленточный ростверк по буронабивным сваям. Класс бетона - В20 Перекрытие: на отм. 0.000 (пол) - плиты перекрытия, на отм.+2,900 (потолок) - деревянное, утеплённое. В качестве теплоизоляции применяется утеплитель из минераловатной плиты, толщиной 200 мм. Стены: из отсев блоков толщ. 380 мм. заводского производства по ГОСТу Кровля: маталочерепица Super Monterey, утепление 200 мм, балки и стропила обработаны противопожарными составами Фасад : базальтовый утеплитель 100 мм, декоративная штукатурка Короед Бергауф, декоративные деревянные элементы из Лиственницы Окна: пластиковые витражные NordProf, остекление двухкамерное Отопление : газовое , радиаторы + теплые полы по всему дому Электричество: заведено в дом, сделана разводка под розетки выключатели и освещение Внутренняя отделка:стены оштукатурены гипсовой штукатуркой машинного нанесения, полы выровнены полусухой стяжкой Вода скважина, канализация выгребная Участок огорожен с трех сторон забором из профнастила, лицевая сторона из отсев - блоков с декоративной штукатуркой и металлическим штакетником + калитка + откатные ворота Строительство планируем завершить в апреле 2024 г. Дом можно приобрести по сельской ипотеке 3 %



















