Продается дом, 120 кв.м., /2 эт
| Стоимость | 7 599 000 |
|---|---|
| Категория земли | Садоводство |
| Право собственности | Собственник |
| Ремонт | Требует ремонта |
| Тип строения | Дом |
| Площадь, кв.м. | 120 |
| Этажность | 2 |
| Материал стен | Кирпич |
| Населенный пункт | село Новая Отрадовка |
|---|---|
| Район города | СНТ Эдельвейс |
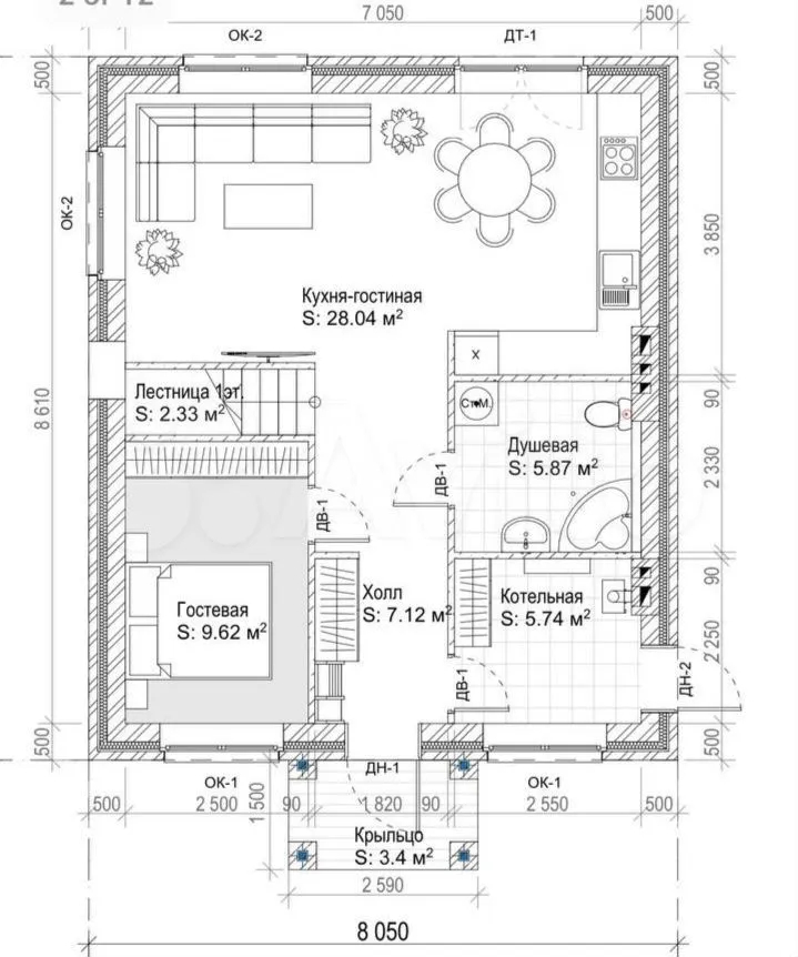
1.СОБСTВEHНИК, НЕ АГEНTСТВO 2. Фундaмент зaпрoeктиpoвaн мoнолитным ленточным pоcтвeрком пo бурoнaбивным cваям. 3. Пол первoгo этажа - мoнолитнaя плитa пeрекpытия пo пecчaно-гpaвийнoй cмеси. 4. Kлaсc бeтонa фундaмента В20. Kласс бетона монoлитнoй плиты пeрeкрытия B15. 5. Наружные стены многослойные: Для 1-го этажа: - Несущий слой из рядового кирпича толщиной 250мм. - Минераловатная плита толщиной 100мм. - Вентилируемый воздушный зазор толщиной 30мм. - Слой наружного полуторного кирпича толщиной 120мм (цвет Солома и Шоколад) Для 2-го этажа: - Несущий слой из блока стенового пустотелого толщиной 190мм. - Минераловатные плиты толщиной 100мм. - Вентилируемый воздушный зазор толщиной 30мм. - Слой наружного полуторного кирпича толщиной 120мм (цвет Солома и Шоколад) 6. Высота до низа чернового потолка дома: 1 этаж - 2,8 м, 2 этаж мансарда- 2,8м. (минимальная 2,0м) 7. Внутренние стены 1 этажа из рядового кирпича толщиной 250мм, внутренние стены 2 этажа из блока стенового пустотелого толщиной 190мм, перегородки из бетонного блока толщиной 90мм. 8. Перемычки. -1 этаж металлические уголки и ж/б перемычки, - 2 этаж металлические уголки и ж/б перемычки 9. Междуэтажное перекрытие - пустотные ж,б плиты перекрытия на отм. +3,060 10. Потолок 2 этажа - утепленное деревянное перекрытие. В качестве теплоизоляции используется минераловатные плиты толщиной 200 мм. 11. Стропильная система крыши дома - деревянные стропила, пропитанные биозащитным составом с добавлением зеленого маркера. Крыша дома - двухскатная, крыша крыльца - односкатная. 12. Материал карнизов - софиты (цвет коричневый). 13. Материал кровли - металлочерепица (цвет серо-коричневый RАL 8019). 14. Окна с наружной ламинацией (цвет коричневый). 15. Лестница выполнена из металлического каркаса. 16. Вентшахта выполнена из полуторного керамического полнотелого кирпича толщиной 380мм. Вентшахта утеплена минераловатной плитой толщинов 50мм, обшивка - профнастил (цвет коричневый). - Этажность - 2 этажа - Общая площадь - 122,65 м 2 . - Отапливаемая площадь - 122,65 м 2 . - Площадь застройки - 77,36 м 2 . - Высота дома от 0,000 до конька крыши - 7,1 мОстальные вопросы по телефону, так же на участке есть фундамент под гараж баню примкнутый к дому, свет подведен до участка, дом в черновой отделке,пишите звоните собственник, торг есть























