Продается дом, 13 кв.м., /2 эт
| Стоимость | 3 600 000   | 
|---|---|
| Право собственности | Собственник | 
| Категория земли Avito | Индивидуальное жилищное строительство (ИЖС) | 
| Тип строения | Дом | 
| Площадь, кв.м. | 13 | 
| Этажность | 2 | 
| Материал стен | Кирпич | 
| Населенный пункт | Стерлитамак | 
|---|
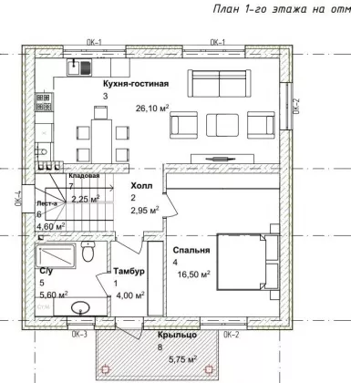
Продается Дом в Лунном Озере 132 кв.м 2023 года постройки строился по проекту и снипу. Не по далеку поселок Байрак, и Новая Отрадовка (5-6 км). Поселок активно застраивается цены только растут улица заселена, строются соседи. В доме 4 спальни, отдельный зал на три окна, большая кухня. Стены керамзитоблок 6 щелевой усиленная стенка размер 30х40х20 см keffler заводской из города Оренбурга был доставлен фурами. Подведен свет 380/220 15 киловатт. Фундамент ленточный армированный использовалась арматура 10,12 мм, глубина фундамент вниз от земли 1,6 метра вверх цоколь 0.85 м. Кирпич ноль куганак м -125. Крыша металлочерепица каскад цвет граффит, выведены 2 вытяжных канала, залиты армопоясы. Участок в собственности. Окна 2 камерные 3 стекла немецкий профиль 71 мм цвет граффит стекла мультик энергосберегающие заказанны и оплаченны скоро установка. Фундамент обработан гидроизоляцией. Есть фото и видео строительства. Можем сделать фасад дома и внутренние отделки за другую сумму.

































