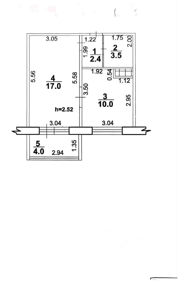
Продается однокомнатная квартира, 34 кв.м., 5/11 эт
| Стоимость | 3 050 000 |
|---|---|
| Комнат в квартире | 1 |
| Площадь, кв.м. | 34 |
| Площадь кухни, кв.м. | 10 |
| Этаж | 5 |
| Этажность | 11 |
| Материал стен | Панельный |
| Населенный пункт | Стерлитамак |
|---|---|
| Улица | улица Ботаническая |
Продается уютная однокомнатная квартира площадью 34.9 кв. м в современном панельном доме, построенном в 2020 году. Квартира находится на 5 этаже 11-этажного здания. Высота потолков составляет 2.7 метра, что создает ощущение простора и света. Просторная кухня площадью 10 кв. м станет отличным местом для семейных ужинов или встреч с друзьями. В квартире выполнен косметический ремонт, поэтому вы можете сразу заехать и жить с комфортом. Ванная комната совмещенная, что удобно для размещения техники и сантехники. Из окон квартиры открывается вид на улицу, что обеспечивает хорошую освещенность в течение дня. Также в вашем распоряжении будет просторная лоджия, где можно отдохнуть на свежем воздухе или организовать зону отдыха. Дом оборудован всем необходимым для комфортной жизни: есть пассажирский лифт, удобный пандус для колясок и наземная парковка, поэтому можно не беспокоиться о месте для автомобиля. Район, в котором находится дом, прекрасно развит. В шаговой доступности расположены школы, детские сады и клиники, что особенно удобно для семей с детьми. Рядом также находятся магазины, где можно купить все необходимое для жизни. Хорошая транспортная доступность позволяет быстро добраться до любой точки города. Квартира продается без посредников, от собственника, что делает сделку более простой и выгодной. Возможна продажа в ипотеку. Все документы готовы к сделке, юридических обременений нет. Приглашаем вас на просмотр в удобное для вас время! Позвоните, чтобы договориться о встрече и лично оценить все преимущества этой замечательной квартиры.













