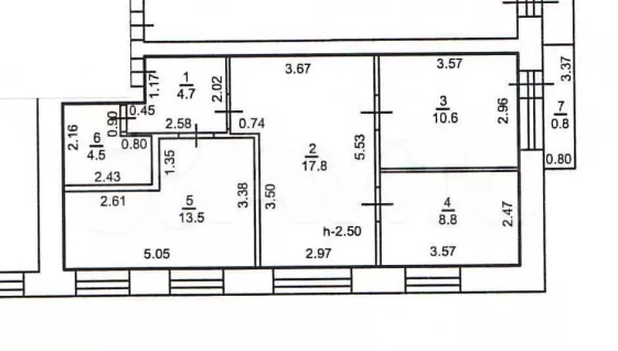
Продается 3-х комн. квартира, 59 кв.м., 5/5 эт
| Стоимость | 3 850 000 |
|---|---|
| Ремонт | Косметический |
| Доля в квартире | Нет |
| Статус Недвижимости Авито | Квартира |
| Право собственности | Собственник |
| Комнат в квартире | 3 |
| Площадь, кв.м. | 59 |
| Жилая площадь | 37 |
| Площадь кухни, кв.м. | 13 |
| Этаж | 5 |
| Этажность | 5 |
| Материал стен | Кирпич |
| Населенный пункт | Стерлитамак |
|---|---|
| Район города | Железнодорожный |
| Улица | улица Нагуманова |
Продам светлую просторную каартиру в кирпичном доме.Возможна продажа в ипотеку по старой ставке в 11.9 %(СберБанк)В квартире сделан получистовой ремонт. Полы выровнены. Стены отштукатурены и отшпаклеваны.Полностью новая медная проводка.Новые качественные пластиковые окна с откосами Застекленный балконБольшая кухня (13,5 м2)Большой санузел в котором без проблем поместиться все необходимое и останется место чтобы комфортно этим всем пользоваться .Находится в спокойном месте , в шаговой доступности магазины , аптеки , отделение почты, остановка общественного транспорта. Чистый подъезд с крайне спокойными соседями .Во дворе есть детская площадка. Парковочные места есть всегда.Осталось доделать косметическую часть ремонта на ваш вкус.Продажа от собственника Помощи в продаже и не требуется































