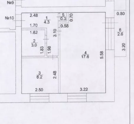
Продается однокомнатная квартира, 31 кв.м., 3/5 эт
| Стоимость | 1 550 000 |
|---|---|
| Ремонт | Требует ремонта |
| Комнат в квартире | 1 |
| Площадь, кв.м. | 31 |
| Жилая площадь | 17 |
| Площадь кухни, кв.м. | 6 |
| Этаж | 3 |
| Этажность | 5 |
| Материал стен | Кирпич |
| Населенный пункт | Салават |
|---|---|
| Улица | улица Ленина |
Предлагается к приобретению однокомнатная квартира, расположенная на третьем этаже пятиэтажного кирпичного дома, имеется подвальное помещение для дополнительного хранения. Дом кооперативный, отличается надежностью и качеством строительства, а также ухоженным двором. Жилье обладает приятной планировкой, которая включает в себя совмещенный санузел и застекленный балкон, открывающий вид на тихий и зеленый двор. Это отличная возможность обустроить пространство под свои предпочтения и нужды, ведь квартира требует ремонта, что дает новым владельцам свободу творчества в создании своего уникального интерьера. Газ уже проведен в квартиру, что является значительным преимуществом и позволяет экономить на коммунальных платежах. Также стоит отметить, что квартира имеет хорошую освещенность благодаря окнам, выходящим во двор, что создает дополнительный комфорт для будущих жильцов. Это предложение подойдет тем, кто ценит спокойствие и уединение, а также желает иметь собственное жилье в городе Салават, на улице Ленина, 74. Здесь вы найдете все необходимое для комфортной жизни, наслаждаясь при этом близостью природы и отсутствием городской суеты. Приглашаем вас ознакомиться с квартирой и убедиться во всех ее преимуществах лично!



























