Продается однокомнатная квартира, 32 кв.м., 4/5 эт
| Стоимость | 2 200 000 |
|---|---|
| Ремонт | Косметический |
| Комнат в квартире | 1 |
| Площадь, кв.м. | 32 |
| Жилая площадь | 15 |
| Площадь кухни, кв.м. | 6 |
| Этаж | 4 |
| Этажность | 5 |
| Материал стен | Кирпич |
| Населенный пункт | Стерлитамак |
|---|---|
| Район города | Комсомольский |
| Улица | улица Дружбы |
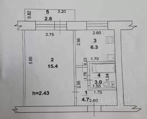
Риелторов просьба не беспокоить, только если у вас есть покупатель. Продается уютная однокомнатная квартира в Стерлитамаке на улице Дружбы, 62. Общая площадь — 32 кв. м, жилая площадь — 15.4 кв. м. Квартира расположена на 4 этаже 5-этажного кирпичного дома. Высота потолков — 2.5 метра, что придает квартире дополнительный простор и свет. В квартире сделан косметический ремонт, поэтому вы можете сразу заехать и жить. Комната просторная, с выходом на балкон, где можно наслаждаться утренним кофе или вечерними закатами. Кухня площадью 6.3 кв. м компактная и удобная для приготовления различных блюд. Санузел совмещенный. Дом в хорошем состоянии, подъезд чистый и ухоженный, соседи приятные . Парковочные места всегда доступны рядом с домом, поэтому вам не придется беспокоиться о стоянке для автомобиля. Район отлично подходит для семей с детьми. В шаговой доступности находятся школы, детские сады и клиники, что очень удобно для родителей. Также рядом есть множество магазинов, где можно найти все необходимое. Хорошая транспортная доступность: до ближайшей остановки всего несколько минут пешком, рядом парк Победы и чуть дальше ТЦ Фабри. Квартира продается от собственника, без посредников и комиссий. Юридически чистая, без обременений, подходит под ипотеку. Отличный вариант для тех, кто ищет уютное жилье в обжитом районе. Звоните для просмотра! Мы будем рады показать вам эту замечательную квартиру в удобное для вас время. Не упустите возможность стать обладателем отличного жилья по привлекательной цене.





















